
GRIDLOCK Mortice Bathroom Lock G7
GRIDLOCK Mortice Bathroom Lock G7
Profile: Square
Bathroom Sashlock
Suitable for use on 60-minute fire doors
Easily reversible latch system
Supplied with fixings pack.
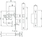
Dimensions:
SIZE (mm) | 65 | 75 |
A | 65 | 75 |
B | 47 | 57 |
Product Information
- Complies to EN
- Fire Rated 60 Minutes
Brand: Grid Lock
Finish: Polished Brass, Polished Stainless Steel, Satin Stainless Steel